Flat.sg » D14 - Geylang » D14 - Geylang Condominium » Avant Residences

Condominium for Sale - Avant Residences - D14 - Geylang - Avant Residences 10 Aljunied Road Singapore - 764 900 SGD - 1070636

764 900 SGD

Normal
POH CHUAN POH
Property Agent

Verified number: +6587175245

https://agent.sg/R025439A
Write message to

+65

Share this listing
Description

Call Joycelyn Wong *****
Avant Residences
10 Aljunied Road S389799

Immediate Booking
Studio 377sqft frm $664,800
Studio+S 441sqft frm $710,600
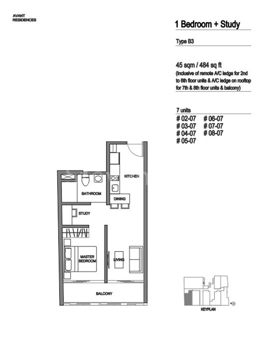
1 Br+S 484sqft frm $764,900
2br 527sqft frm $816,600

AVANT RESIDENCES @ 10 Aljunied Rd

Project Attributes
Conveniently located at 10 Aljunied Road, at the fringe of the city
Around 300m short walk to / from Aljunied MRT
5mins drive & MRT ride to city
Fully Fitted – ready to move-in or rent out
Very close to eateries, restaurants, renowned schools & amenities

Estate details

Sale

Avant Residences

Avant Residences 10 Aljunied Road, Singapore0

764 900 SGD

1

1

484 sqft

1070636

Facilities
Key features:
  • Renovated
  • Low Floor
Photos of this Condo
Location of this property
More estate type list in D14 - Geylang