Condominium for Rent - The Parc Condominium - D05 - Buona Vista - West Coast Walk - 3 000 SGD - 82151

3 000 SGD

Normal
CHUA HEON WEY CLEMENT
CHUA HEON WEY CLEMENT
Property Agent

Verified number: +6592378100

https://agent.sg/R040889E
Write message to Clement Chua

+65

Share this listing
Description

Available from 19 Dec 17 onwards.
Partially Furnished
Advance viewing arrangement is required.

Estate details

Rent

The Parc Condominium

West Coast Walk1

3 000 SGD

2

0

Condominium

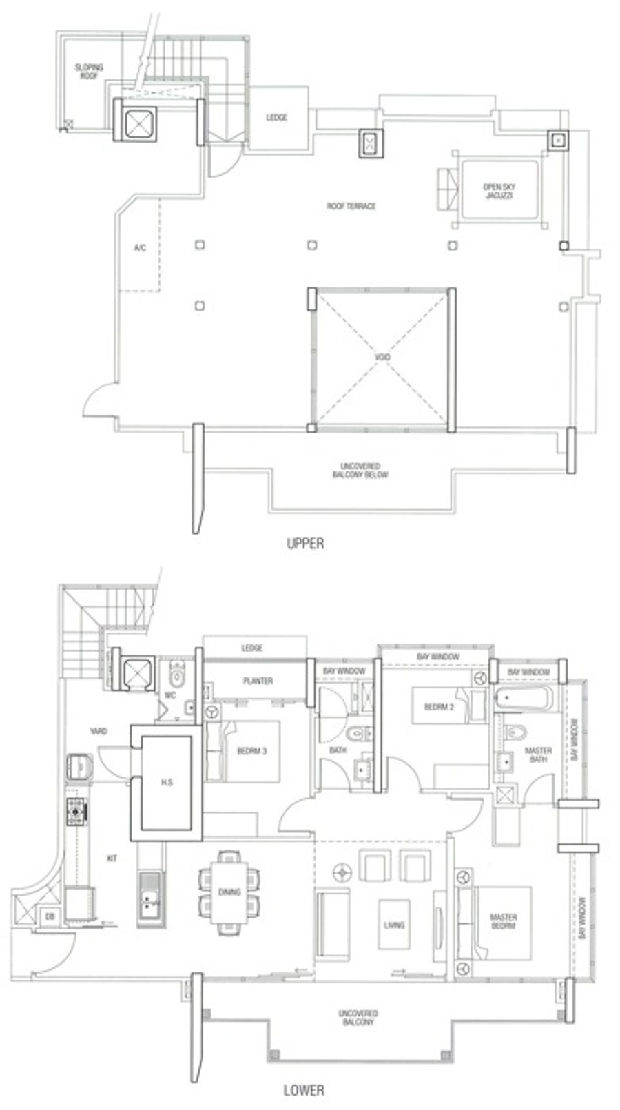
970 sqft

3

82151

Freehold

Location of this property
More estate type list in D05 - Buona Vista