Flat.sg » D05 - Buona Vista » D05 - Buona Vista Apartment » One-north Residences

Apartment for Rent - One-north Residences - D05 - Buona Vista - One-north Gateway - 4 400 SGD - 84590

4 400 SGD

Negotiable
ONG CHOON THYE
ONG CHOON THYE
Property Agent

Verified number: +6583896633

https://agent.sg/R006687J
Write message to

+65

Share this listing
Description

Not to be missed. IMMEDIATELY AVAILABLE.

Highest floor (As good as penthouse).

** Complete privacy. Only 2 units at this level
** Exclusive use to rooftop pool and jacuzzi
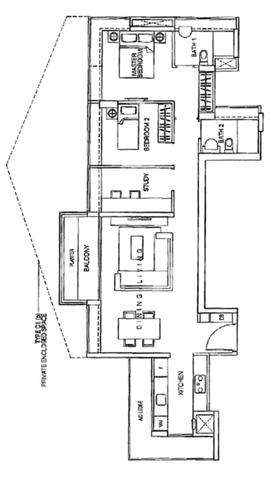
** 2 Bedrooms / Baths
** Regular layout

THE LOCATION
** 10 mins drive to Central Biz District
** 15 mins drive to Orchard Road
** For F&B outlets
- Walk 9 mins Star Vista
** For amenities - Clinic, Cold Storage etc
- Walk 8 mins to Connexis
** 8 mins walk to Insead

For viewing , please contact

Asher ***** or
Ning *****

^^ Keys on hand ^^

Estate details

Rent

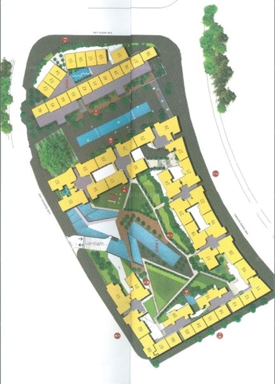
One-north Residences

One-north Gateway7

4 400 SGD

Negotiable

2

0

Apartment

980 sqft

4

84590

99-year Leasehold

Location of this property
More estate type list in D05 - Buona Vista